結果発表

プロポーザル部門2次審査結果発表TOPへ | 作品例部門結果発表TOPへ

作品例部門 優秀賞
新宿センタービル18階大成建設喫煙室/久保勝彦 林友斉

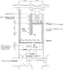
二重床のシステム

平面
古谷
これは技術力で解決した案で,床面から空気を吹き出して上昇気流をつくっているのと,それでも漂ってしまう煙をベンチに取り込んで竹炭で臭気を取り除こうという試みです.そのメカニズムもさることながら,カウンターとベンチを一体化したデザインのクオリティも高かったと思います.
六鹿
床吹き出し空調は割と一般化していますが,空調の空気を感じないゆったりとした風が上がってくるのと,人間のいる領域だけ空調しようというものです.それを利用して,吹き出しを少し早くして,空気を吸い込むかたちとしていますが,一般化してきた技術をうまく取り込んだ案だと思います.
妹島
技術的な解決はよいと思いますが,これが本当にこの天井の高さで実現できているのか体感してみたいと思いました.ただ,壁に向かって吸う配置に疑問が残ります.
西沢
超高層ビルの中にあるので,設備的にハイスペックになっていて,外からの風の流入もなく,OAもレタンもコントロールできる状況下の提案としては,下から吹いて上で吸う空気の流れをつくるのは可能だと思いますので,これが実例として広まっていくといいなと思います.
佐藤
技術的な提案が分かりやすい案です.今までの失敗例は,床から吹き出しても上部で空調の風が吹いて,気流がつくれていなかったのですが,それが解決できるひとつの提案だと思います.ベンチのデザインなどもう少し考えてほしいと思いましたが,マクロとミクロの技術を上手に使った案です.
椅子とテーブル.
椅子側面に見えるのは吸気ガラリ
ガラスに映り込む喫煙室の明かり.