プロポーザル部門 佳作
山本淳平(一級建築士事務所デザインブ)
山本淳平氏.
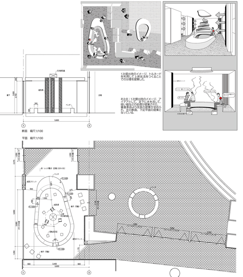
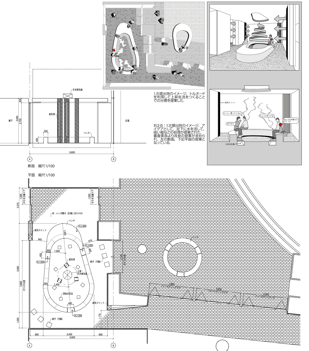
ひとつづきの広場,ひとつづきのベンチ
広場と同じ床材が敷き詰められた空間に,大きなひと続きのベンチを設置する.たばこを吸う人も吸わない人もこのベンチを一緒に利用するが,たばこを吸う人にはベンチの内側に向かって腰掛けてもらう.ベンチの内側に向かって吹き出される煙は竜巻状の気流によって排気されるのでベンチの外側に漏れることはない.たばこを吸わない人はそれぞれの煙に対する許容範囲に応じて腰掛ける向きを選択できる.このように座る向きによって煙を分けることで,誰もが一緒にいられる開放的な空間が可能となる.さらに隣接する風除室とカフェ接続部分も同じ床材でオープンに繋げることで,広場とひと続きになっているような印象を与えている.この内のようで外のような曖昧で開放的な空間は,たばこを吸わない人にも入りやすいもうひとつの広場となる.
